梁與柱的連接
2023-03-20 09:49 陜西鋼結構 華邦建設
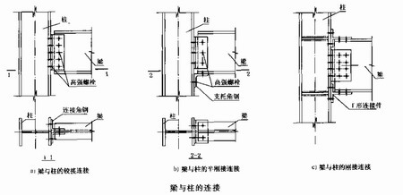
梁與柱的連接一般采用柱貫通型的連接形式,按梁對柱的約束剛度可以分為三類:即鉸接連接、剛性連接和半剛性連接。為簡化計算,特別是簡化對整個結構體系的設計計算,通常假定梁與柱的連接節點為完全剛性和完全鉸接兩種。
設計梁與柱的剛性連接節點時,需要滿足以下要求:
1、梁翼緣和腹板與柱的連接,在梁端彎矩和剪力的共同作用下,需要具有足夠的承載力。
2、梁翼緣的內力以集中力作用于柱的部分,不能產生局部破壞,因此需要根據情況設置水平加勁肋(對H形截面柱)或水平加勁板(對箱形或圓管形截面柱)。
3、連接節點板域,即由節點處柱翼緣板和水平加勁肋或水平加勁板所包圍的柱腹板區域,在節點彎矩和剪力的共同作用下,需要具有足夠的承載力和變形能力。
4、按抗震設計的結構或按塑性設計的結構,采用焊縫或高強螺栓連接的梁柱連接節點,需要保證梁或柱的端部在形成塑性鉸時有充分的轉動能力。
梁柱剛性連接的計算方法有常用計算法和精確計算法兩種。
1、常用計算法考慮梁端內力向柱傳遞時,在原則上,梁端彎矩全部由梁翼緣承擔,梁端剪力全部由梁腹板承擔;同時梁腹板與柱的連接,除了梁端剪力要進行計算外,還需要以腹板凈截面面積的抗剪承裁力設計值的1/2或梁的左右兩端作用彎矩的和除以梁凈跨長度所得到的剪力來驗算。
2、精確計算法是以梁翼緣和腹板各自的截面慣性矩分擔作用于梁端的彎矩M,梁翼緣僅承擔彎矩Mf,而腹板同時承擔彎矩Mw和梁端全部剪力V來進行連接設計的。
陜西鋼結構熱線:029-86252006
華邦建設網址:www.ld0738.cn
聯系地址:陜西省西安市北關正街35號方興大廈8樓
