淺談高層鋼結構柱子的安裝接點
2019-08-22 08:55 高層鋼結構 華邦鋼結構
高層鋼結構柱子的安裝接點一般都采用焊接;圓管柱,方管柱與小尺寸的焊接箱形柱,一般都采用對頭焊接的形式。當采用手工焊接時需要注意保證焊接質量,當有條件時,也可以采用氣體保護的自動焊。
上圖是小尺寸焊接箱形柱的另一種焊接連接的形式;在柱子拼接點的端部焊以橫隔板,并且隔板的周邊需要與柱子的板件焊透,因此要預先在隔板里邊焊以襯板;隔板焊好之后,端面進行銑平,并在周邊銑槽,其尺寸大約為90mm×10mm,工地安裝后,使用高頻焊沿柱子周邊進行焊接(小間隙焊接),這種焊接的接點可以認為與主材等強。
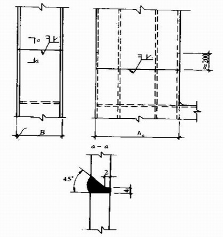
上圖是大尺寸箱形柱的焊接接點。一般將腹板與翼板的拼接位置錯開200mm左右,主要的焊接工作在外部完成,僅在柱里邊進行焊縫的封底工作,有條件時,可以采用氣體保護的自動焊接。這種焊接的接點也可以認為與主材等強,不必再另行計算。
上圖是大尺寸箱形柱采用高強螺栓的接點,這種接點的主要優點是避免了高層鋼結構的高空焊接,給高層鋼結構安裝創造有利的條件。一般考慮設置雙面拼板,為了便于計算,可以假定每個板件單獨按等強拼接進行計算。
總之,管形與箱形柱子的安裝接點應該以焊接為主。因此,安裝單位應該積極研究改進焊接技術,提高焊接質量,采用先進的焊接方法;當前對于管形和小尺寸的箱形柱子僅能采用焊接的方法。大尺寸的箱形柱有條件時可以采用高強螺栓接點,安裝比較簡便;但是使用拼板將增加鋼材用量,大量的鉆孔給結構制造加大了負擔,并且孔洞也會減弱截面強度。因此,高強螺栓的接點好盡量少用。
更多相關高層鋼結構資訊,請點擊:www.ld0738.cn
